Descripción del Proyecto de una Discoteca en Sitges

El Hotel Calipolis en Sitges necesitaba remodelar un espacio de 130 m² para convertirlo en una sala multiusos que pudiera ser utilizada como discoteca, sala de reuniones corporativas y sala de banquetes para eventos.

La Dirección del Hotel pidió un diseño actual que encajase con el resto del Edificio y que la decoración pudiera encajar según los diferentes usos.

Elementos Generales

Se tuvieron que actualizar techos, suelos y paredes. Se optó por la Neutralidad del Blanco con un suelo también neutro de fácil mantenimiento y gran durabilidad.

Se actualizaron los grandes ventanales para que la luz natural llegara a toda la sala en los eventos realizados en horario diurno.

La Luz como elemento central de la Decoración

El hecho de que la la sala tenga diferentes usos condicionó la decoración y el diseño de la misma. Los elementos decorativos propios de la noche tendrían que pasar desapercibidos durante el día.

Javier Barba ideo un sistema de iluminación que permitiera dar personalidad por la noche a la sala de fiestas y permitiera que el espacio luciera anodino durante el día para sala de convenciones o reuniones de empresa. 

discoteca discoarquitectura diseño

 

 

 

 

 

discoteca Sitges

 

Sistema de sonido y Pantallas para presentaciones

El sistema de sonido y la acústica del local fue ideada para disfrutar de la música por la noche y para presentaciones profesionales.

La sala cuenta con una cabina de DJ y una amplia zona de baile. 

Una gran pantalla oculta en el techo en la discoteca baja entre dos columnas que hay ante la barra para ofrecer un soporte espectacular para las presentaciones y que esta quede oculta.

hotel sitges diseño

Los aseos de la sala-discoteca ofrecen una imagen ideal para los dos usos de la sala. 

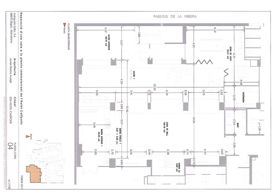
plano de diseño de la discoteca

Acceso desde la Playa

La gran sala tiene una zona de acceso exterior que orienta la sala hacia la playa. El Hotel Calipolis se encuentra en primera linea de playa y la dirección quería que el proyecto estuviera orientado hacia esta.

El proyecto también cuenta con una enfermería y con una zona de juegos que puede ser cerrada. 

Sala Brisa del Hotel 

hotel sala de conferencias

javier barba arquitecto

 

 

calipolis hotel discoteca

Javier Barba, Arquitecto.

Javier Barba capitanea el despacho de Arquitectura: Ausbar Arquitectos. Es el fundador de Ausbar  y tiene una gran experiencia en el Diseño y Construcción de Edificios no Residenciales, Viviendas y Restauración de Edificios Catalogados o/y históricos.

Contacta

col.legi d'arquitectes